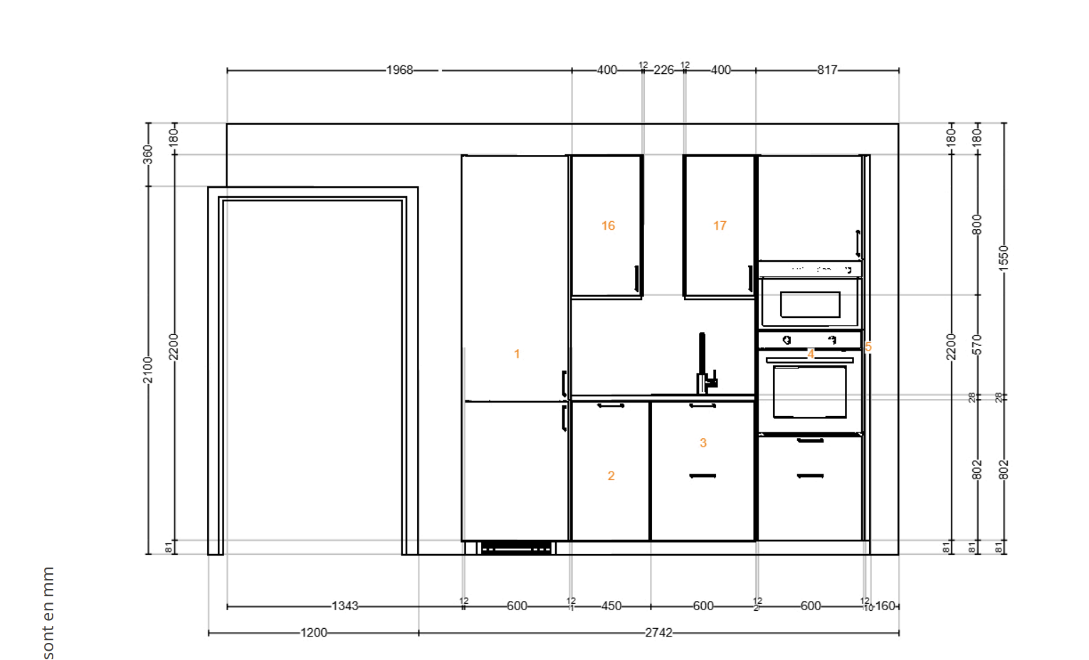
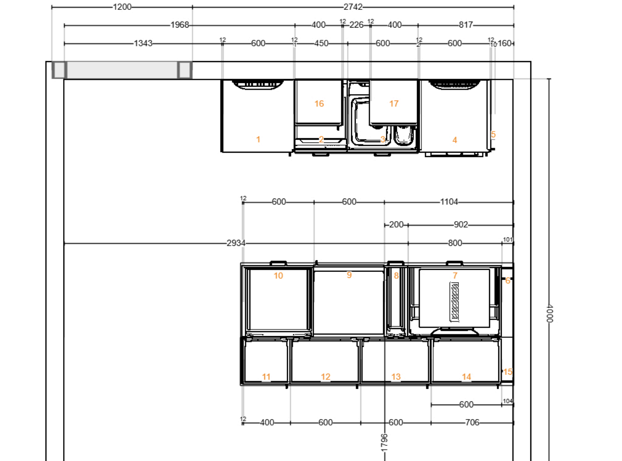
Agencement sur mesure pour un appartement en bord de mer à Nice
Au cœur de Nice, face au port et à la mer, Bocklip signe un agencement sur mesure qui célèbre la lumière du Sud et la chaleur du bois. Cet appartement, baigné de soleil, a été entièrement repensé pour allier design minimaliste, matériaux naturels et artisanat français.
PLISSÉ
Bois brossé
Chêne arabica

