Projet : cuisine bois clair Bocklip et salle de bain bois coordonnée
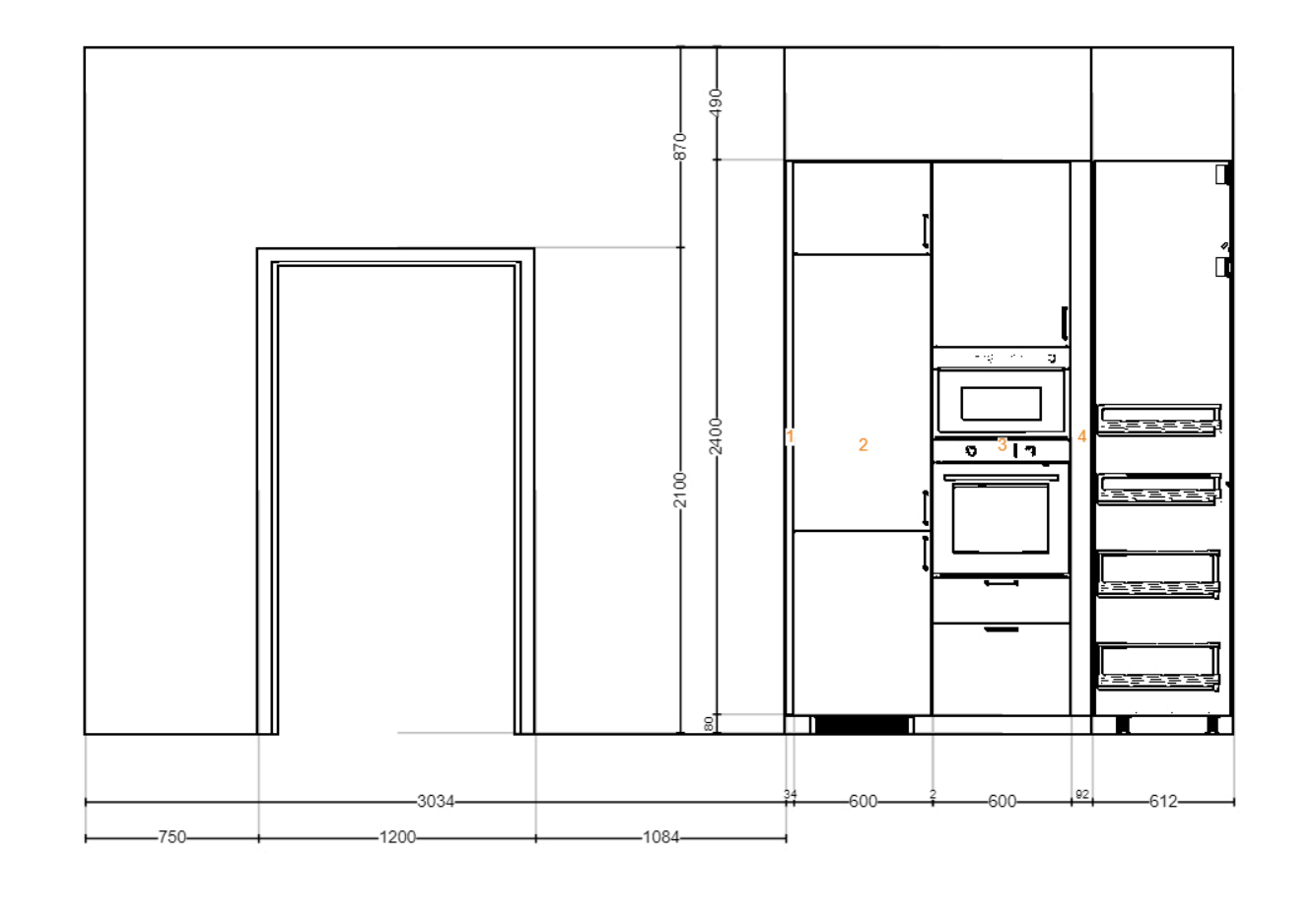
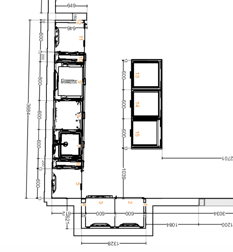
Dans cet appartement entièrement rénové, l’objectif était d’ouvrir les volumes, faire entrer la lumière et organiser la pièce de vie autour d’une cuisine en bois Bocklip, minimaliste et chaleureuse.
Autrefois très cloisonné, avec plusieurs petites pièces et un mur bloquant la lumière entre l’entrée et le salon, l’espace a été décloisonné pour créer une grande pièce de vie continue. Les moulures, portes hautes et le parquet en chevrons ont été conservés et mis en valeur par une palette douce de blancs cassés, beiges minéraux et touches terracotta, qui souligne les aménagements en bois.
MODERNE
Bois lisse
Chêne arabica



