Classique Old en laque mate : une cuisine au charme subtil, Rue de Lille
Cette cuisine Bocklip s’inscrit dans la rénovation d’un appartement parisien, Rue de Lille, où l’espace a été pensé comme un décor du quotidien : beau, pratique et personnel. Les lignes restent calmes, les volumes respirent, et chaque détail vient construire une atmosphère douce, lumineuse et intemporelle.
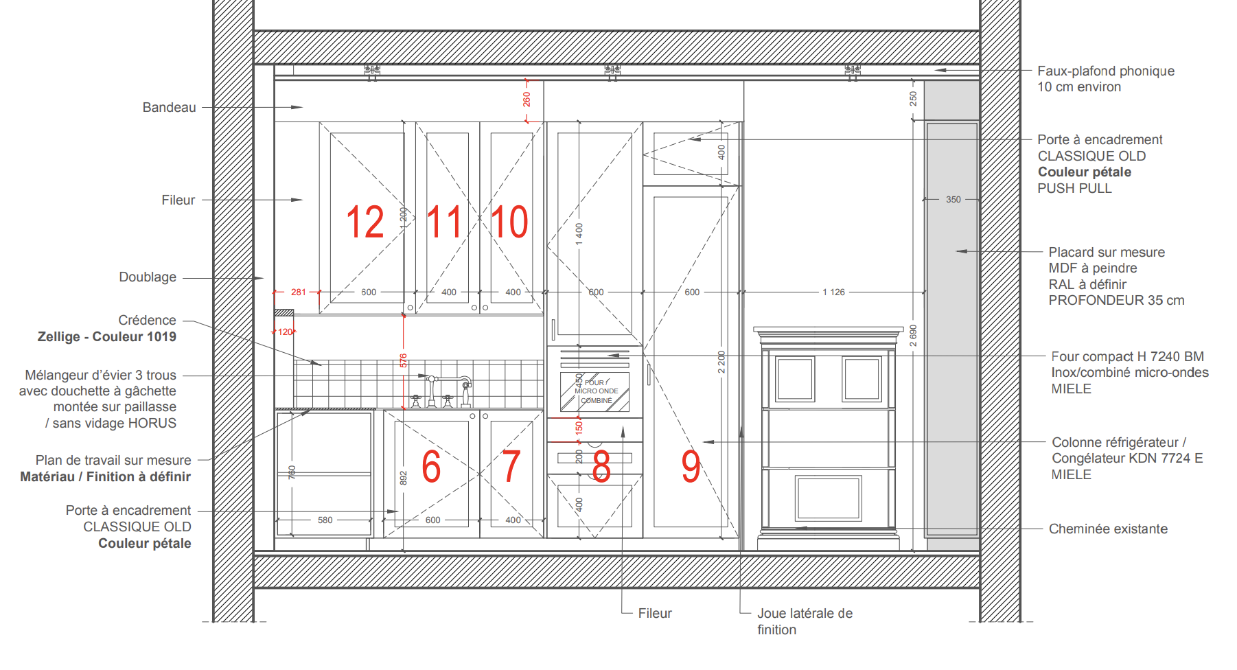
Les façades Bocklip Pétale, en laque mate et en forme Classique Old, structurent l’ensemble avec une élégance discrète. Leur teinte poudrée, subtilement vintage, apporte de la chaleur sans alourdir, tandis que le dessin à cadre donne du relief et du rythme à la composition.
En contrepoint, la crédence en zellige posé à la main capte la lumière avec ses variations, le plan de travail en pierre claire veinée prolonge la sensation de clarté, et le sol cabochon noir et blanc installe un graphisme tout en finesse. Un projet précis et chaleureux, où le savoir-faire Bocklip s’exprime dans la netteté des alignements, la qualité des finitions et la sérénité d’une palette pensée pour durer.
CLASSIQUE OLD
Laque mate nuancier Bocklip
Pétale


