Cuisine avec îlot en zellige brun et façades Bocklip en chêne Arabica
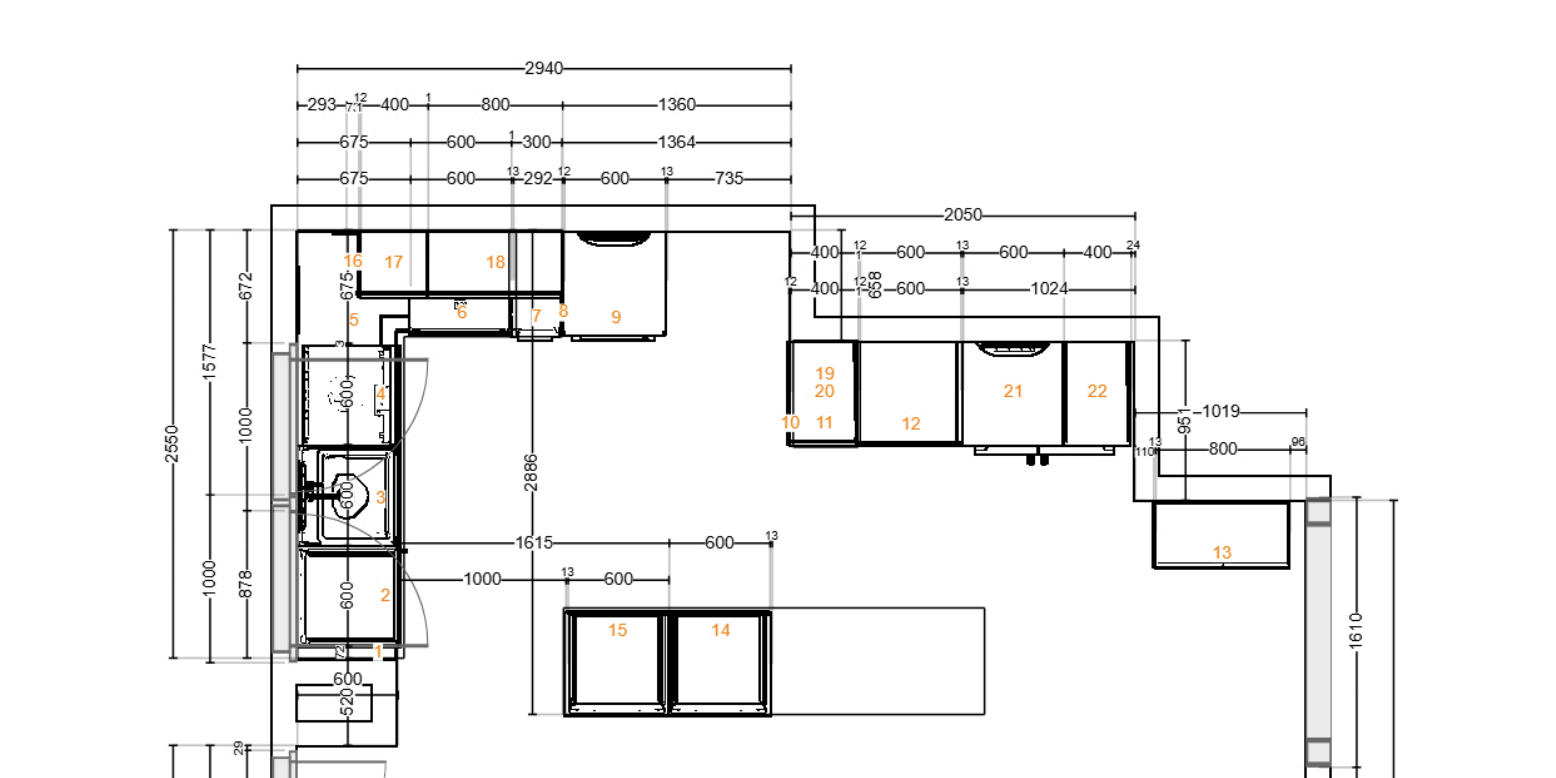
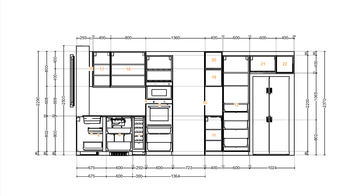
La cuisine retrouve un rôle clair grâce à un îlot central qui dessine l’espace et organise les usages. Volume d’ancrage, il concentre les gestes du quotidien et devient naturellement un point de rendez-vous. Le zellige brun foncé apporte une présence dense et tactile, tandis que les façades Bocklip en chêne Arabica réchauffent la composition par la finesse du fil et la profondeur du veinage. La matière travaille l’architecture : relief, lumière, reflets. Le plan de travail minéral vient cadrer l’ensemble et maintenir une lecture nette, précise, sans surcharge. Rangements intégrés, électroménager discret et coin café en niche complètent cette cuisine sur mesure, pensée pour durer et rester lisible dans le temps.
picto forme moderne
MODERNE
Bois lisse
Chêne arabica
Un îlot habillé de zellige brun profond donne sa signature au projet. Par sa masse et sa texture, il structure la pièce, canalise les circulations et installe une vraie géographie de cuisine : préparer, poser, partager. En contraste, les façades Bocklip en chêne Arabica apportent une chaleur maîtrisée et une écriture plus douce, au service d’une ligne continue. Le plan de travail minéral équilibre l’ensemble et prolonge la sensation de clarté. Chaque élément est traité comme un détail d’architecture : alignements, transitions de matières, intégration du coin café et des équipements. Le résultat : une cuisine avec îlot central, fonctionnelle et expressive, où le bois, le zellige et la pierre composent une atmosphère à la fois contemporaine et intemporelle.

Budget détaillé

Ikea
Caissons
5.592,98 €
Bocklip
Façades Arabica Moderne
15.220,07 €
Total
20.813,05 €

Partager sur

Laisser un commentaire

Votre adresse e-mail ne sera pas publiée. Les champs obligatoires sont indiqués avec *

Plus d’expériences avec Bocklip

ProjectsPure
Cuisine en inox brossé, lignes nettes, reflets maîtrisés

L’inox brossé revient en force dans l’habitat. Chez Bocklip, il devient une façade d’architecture : nette, lumineuse, précise, adoucie par des matières plus chaudes.

ModerneProjects
Cuisine avec îlot en zellige brun et façades Bocklip en chêne Arabica

Un îlot central redonne une vraie place à la cuisine : zellige brun profond, façades Bocklip en chêne Arabica et détails pensés pour le quotidien.

PlisséProjects
Meuble IKEA cuisine en chêne Arabica plissé Façades Bocklip sur mesure

Une cuisine sur meubles IKEA habillée de façades Bocklip en chêne Arabica plissé, marbre Capraia et finitions cuivre.

Projects
Cuisine en Chêne Arabica à Paris 12

À Paris 12, cet appartement révèle une cuisine en Chêne Arabica et un dressing en laque mate signés Bocklip, dans une écriture intérieure sobre, lumineuse et durable.

Home Tours
Home Tour : une cuisine Bocklip sur-mesure pour optimiser 50 m² à Paris 14eme

Une cuisine Bocklip en chêne Arabica plissé, pensée comme une pièce architecturale au cœur d’un intérieur lumineux et équilibré.

Projects
Cuisine sur mesure Bocklip dans l’Oise, façades Classique en laque mate NCS

Chez Bocklip, ces deux formes se déclinent en laque mate. Reste à déterminer laquelle conviendra le mieux à votre intérieur. Voici quelques projets pour éclairer votre choix.

Projects
Classique et Classique Old, deux formes pour votre intérieur

Chez Bocklip, ces deux formes se déclinent en laque mate. Reste à déterminer laquelle conviendra le mieux à votre intérieur. Voici quelques projets pour éclairer votre choix.

Projects
Classique Old en laque mate : une cuisine au charme subtil, Rue de Lille

Rue de Lille, une cuisine Bocklip en laque mate Pétale (Classique Old), douce et intemporelle, relevée par un zellige artisanal et un sol cabochon.

Projects
Cuisine sur mesure en chêne Arabica, à deux pas du métro La Muette

Dans le 16e arrondissement, à deux pas de La Muette, cette cuisine sur mesure joue l’équilibre entre chaleur et sobriété. Le chêne Arabica Bocklip structure les volumes, associé à des façades hautes en laque mate...